1-к, Серебристая, 3 Показать на карте
Мотовилихинский район, Ива (Спортивный)
Пермь, Погода
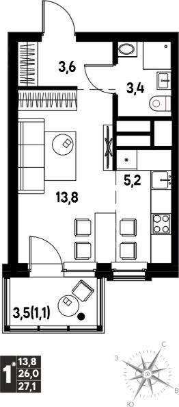
Продаётся студия в строящемся доме (Серебристая, 3), срок сдачи: III-кв. 2026, общей площадью 29 кв.м., на 5 этаже. Теплые кварталы ''Погода'' — это новый грандиозный проект от создателя Спортивного микрорайона ''Ива'', федерального застройщика ''Девелопмент-Юг'' .
29 м2
5 / 20 этаж
Монолит
- Показать контакты
- Добавить в избранное
29 м2
5 / 20 этаж
Монолит
5 524 500
190 500 /м2
Новостройка,
III-2026
III-2026
