1-к, Серебристая, 1 Показать на карте
Мотовилихинский район, Ива (Спортивный)
Пермь
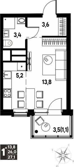
Продаётся студия в строящемся доме (Серебристая, 1), срок сдачи: IV-кв. 2027, общей площадью 38.9 кв.м., на 8 этаже. Теплые кварталы ''Погода'' — это новый грандиозный проект от создателя Спортивного микрорайона ''Ива'', федерального застройщика ''Девелопмент-Юг'' .
38 м2
8 / 20 этаж
Монолит
- Показать контакты
- Добавить в избранное
38 м2
8 / 20 этаж
Монолит
6 130 640
157 600 /м2
Новостройка,
IV-2027
IV-2027
