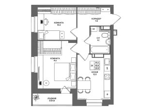
2-к, Водопроводная, 5 ст4 Показать на карте
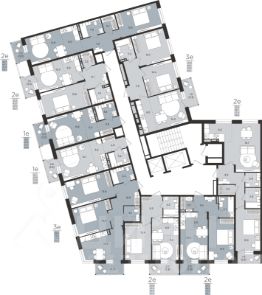
Кондратово, QUATRO (КВАТРО)
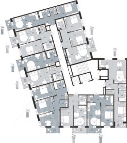
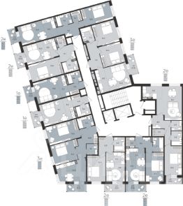
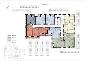
Жилой дом QUATRO от ИНГРУПП - все преимущества городской жизни в зеленом микрорайоне, рядом с лесом и рекой.В QUATRO вас ждут:Безопасность: современные технологии строительства защитят приватность и спокойствие жильцов, а интеллектуальные системы ''умного дома'' обеспечат безопасность квартир и общих пространств.Гармоничная жизнь на любой вкус: можно гулять и делать покупки, заниматься спортом или наслаждаться тихим отдыхом на свежем воздухе.В продуманном благоустроенном пространстве безопасно и интересно детям и взрослым.Всё необходимое в шаговой доступности: не нужно тратить время, чтобы отвезти ребенка в сад или школу, сделать закупки на всю семью, посетить поликлинику или салон красоты.Чистый воздух и живописная природа: благоприятная экология помогает сохранить здоровье, а природа дарит разнообразие возможностей для активного и спокойного отдыха. Во дворе дома QUATRO большая зона озеленения и множеством уникальных растений.QUATRO — это современное настоящее и перспективное будущее:В доме два вида отделки: ИНСМАРТ и White box.Высота потолков в квартирах — от 2,72 м до 2,9 м. Увеличенные окна, простор и свет.В каждом лобби-холле: ресепшн-зона консьержа, место для велосипедов, большая колясочная комната, 124 кладовые.Самый большой двор ИНГРУПП в Кондратово - детская площадка для всех возрастов, зона для коворкинга, уличные гостиные, сцена, ворк-аут зона, разнообразное озеленение и арт-объекты во дворе!Во дворе есть розетки для гаджетовСистема умного доступа и видеонаблюдениеПросторный наземный паркингВыбирайте удобный способ оплаты:100% оплата с гарантией. Счета-эскроуЛьготная ипотека от ведущих банковВоенная ипотека. Специальные условия для участников боевых действий и скидки на квартирыТрейд-ин. Поможем с продажей своей квартиры бесплатно!Рассрочка от девелопера на выгодных условияхМатеринский капиталОкончание строительства — I квартал 2027 года.
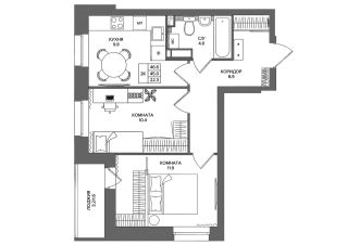
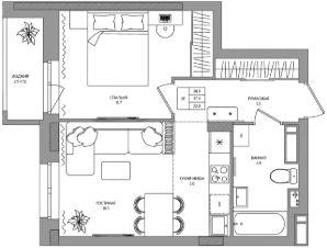
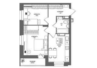
42 м2
3 / 16 этаж
Кирпич - монолит
- Показать контакты
- Добавить в избранное
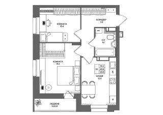
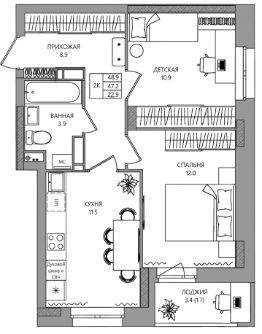
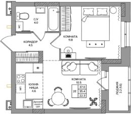
42 м2
3 / 16 этаж
Кирпич - монолит
6 139 000
143 770 /м2
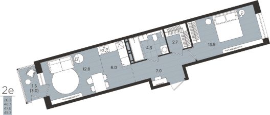
Новостройка,
IV-2026
IV-2026
