2-к, 50 лет Октября, 45 Показать на карте
Ракета-дом Гамово проект строительной группы Ракета, в котором нет случайных решений. Мы продумали каждую деталь до мелочей и все они отвечают потребностям современного городского человека. Ведь именно из этого складывается общее ощущение комфорта и уюта в доме.Ракета-дом Гамово строится в Пермском районе, с.Гамово. 311 квартир, 6 секций переменной этажности: 5 и 8 этажей.Расположенный напротив нового современного корпуса школы Алгоритм.Квартиры с качественной отделкойПотолки - от 2,7 м до 5,1 м.Индивидуальные кладовые.Наличие колясочных - не надо хранить коляски, лыжи и велосипеды в вашей квартире. Простор и чистота.Своя газовая котельная экономия на коммунальных платежах.Усиленная шумоизоляция.Качественные металлические входные двери.Дизайнерские холлы.Витражное остекление на первом этаже.Балконы/лоджии - панорамное остекление.Скоростные бесшумные лифты комфорт и экономия времени.Видеонаблюдение - приватное, безопасное пространство.Продуманные до мелочей функциональные планировки разработаны специально для вас:- Квартиры со вторым светом.- Квартиры с окном в ванной - один из самых популярных и модных трендов в дизайне городских квартир. Такая квартира может говорить о хорошем вкусе и чувстве стиля хозяина. Это нетипичное для современных жилых комплексов решение сделает ваш интерьер неординарным и модным. Перед вами открываются великолепные возможности для творческого обустройства вашей ванной.- Классические квартиры,*Подробные условия по способам оплаты в офисе продаж застройщика.*Застройщик ООО СЗ-Город сад. Проектная декларация на сайте наш.дом.рф. Окраска и архитектура модели здания, а также придомовая территория может отличаться от фактической.
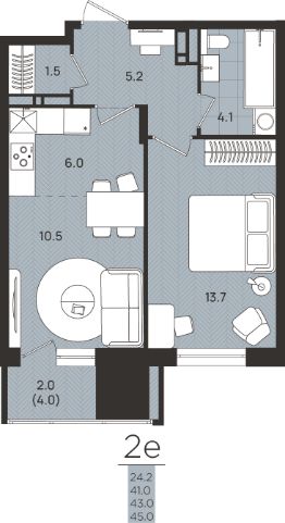
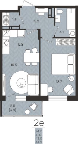
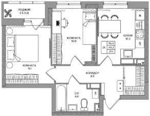
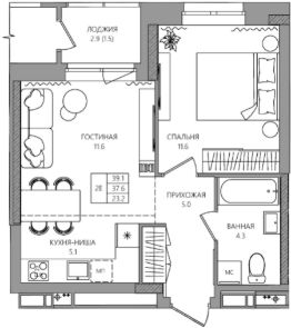
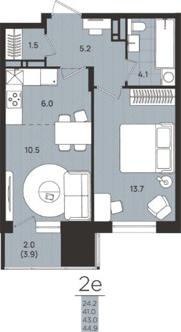
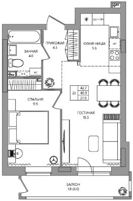
43 м2
7 / 8 этаж
Кирпич - монолит
- Показать контакты
- Добавить в избранное
43 м2
7 / 8 этаж
Кирпич - монолит
4 687 000
109 000 /м2
Новостройка,
II-2027
II-2027
