Универсальное помещение
Спорта, 47 Показать на карте
Спорта, 47 Показать на карте
Оса
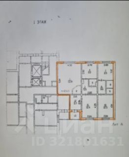
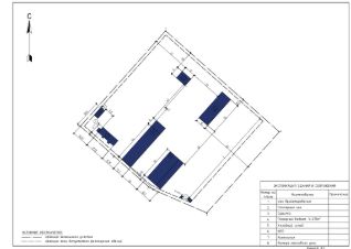
Продам производственноездание для организации бизнесаРасположение: Осинский район, 140 км до краевого центра, 10 км до г. Оса Площадь помещений 450 м2: основное помещение 228 м2, подсобное 222 м2 Ремонт основного помещения произведен в 2021 году. Организованы бытовые комнаты, с/у, 5 производственных комнат. В части помещения стены выложены кафелем. Единое подсобное помещение с большими проемами для окон. Высота кирпичных стен - 8 метров. Установлены: - Центральное водоснабжение, а также собственная скважина с насосным оборудованием с постоянной подачей воды- Бойлер горячей воды- Система видеонаблюдения- Подключенная электрическая мощностью 70 квт.- Новая элетропроводка по всему помещению- Система канализации- Система вентиляции- Отопление автономное Земельный участок площадью 20 соток, территория обнесена бетонным забором с 3-х сторон. Есть возможность подвести газ, увеличить площадь земельного участка до 2 га. Помещение расположено в черте населенного пункта, сан. зона 200 метров Можно использовать: как тур базу, как ремонтную базу - потолки 8 м, фермерское хозяйство и т.д. Стоимость указана без оборудования. Пишите, звоните!
450 м2
- Показать контакты
- Добавить в избранное
450 м2
4 000 000
8 889 /м2
