3-к, Батумская, 21 Показать на карте
Кировский район, Нижняя Курья
Пермь, Жилой комплекс «ПОРТА 21»
PORTA21 там, где создается сообществоЭтот дом — как современная гавань, где встречаются семьи, друзья и соседи. Это место, где формируются традиции, а общие пространства наполняются голосами детей и светом дружеских встреч.Прямо в вашем доме — торговая галерея, где каждый день начинается с маленького удовольствия. Утренний кофе или необходимые повседневные покупки — всё это на расстоянии одного шага.Подземный паркингПродуманное решение для современных жителей. Здесь предусмотрены станции зарядки для электромобилей, пункт подкачки шин и усилители сотовой связи. Каждая деталь пространства отражает заботу о вашем времени.Просторный зонированный двор на стилобатеМесто для отдыха, общения и активного досуга. Зонированные пространства позволяют каждому найти своё место: от тихих уголков для размышлений до детских площадок для активных игр.Терраса на крышеВаш личный оазис для отдыха. Две уникальные зоны:рабочая с минималистичными лавками, встроенными зарядками и столами для работылаунж зона с видом на Каму среди цветников и искусственных туй.ул. Батумская, 2122 этажа в 1 секции и 13 этажей во 2 секцииКвартиры от 26,6 до 75,9 кв.м348 квартирВысота потолков 2,72 мОкончание строительства дома — 4 квартал 2027 года
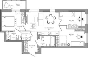
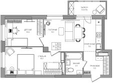
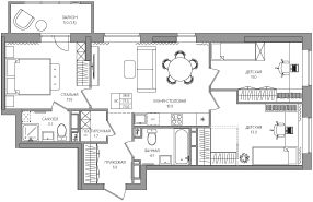
73 м2
11 / 22 этаж
Кирпич - монолит
- Показать контакты
- Добавить в избранное
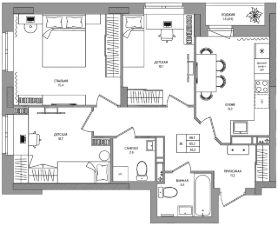
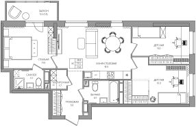
73 м2
11 / 22 этаж
Кирпич - монолит
10 056 000
137 753 /м2
Новостройка,
IV-2027
IV-2027
