2-к, Камская, 8а Показать на карте
Кондратово, Жилой комплекс «КИНЕТИКА ДОМ»
Дом PRIME-класса для семей в сердце 15-минутного города. Только 180 семей. Ввод 2026.Представьте утро без спешки и пробок. Новая школа 5 минут пешком. Лучший детский сад 3 минуты пешком. Секции и творческие студии прямо в вашем доме. Озеро для прогулок рукой подать.Кинетика в Кондратово это воплощение идеи 15-минутного города специально для семей. Все, что нужно вашим детям (и вам!) качественное образование, спорт, творчество, природа, медицина в шаговой доступности. Верните себе часы жизни, которые раньше тратились на дорогу. Подарите детям настоящее детство с прогулками, кружками и временем с вами.Почему КИНЕТИКА Мечта Сознательных Родителей:1. Безопасный Остров Детства:* 7 Барьеров Безопасности + Закрытый Двор. Гуляйте спокойно: машины на паркинге, посторонние за периметром. Ваши дети в безопасности.* Удобная Колясочная и Велосипедная. Никаких проблем с хранением ''транспорта'' малышей и подростков.2. Тишина роскошь для родителей:* Сверхзвуковая Шумоизоляция! 180 мм монолита (57 дБ) + изоляция пола. В 3 раза тише, чем в обычных домах. Ваш сон после трудного дня? Защищен. Плач младенца? Не побеспокоит соседей. Шумные игры детей? Останутся в ваших стенах. Ваша крепость спокойствия.3. Центр творчества: Секции прямо в вашем доме!* 500 м² Креативного Кластера ПРЯМО В ДОМЕ! Танцы, театр, творческие студии. Забудьте про бесконечные переезды ''на развивашки''. Ребенок сможет посещать их сам, не выходя из двора. Таланты ваших детей раскроются здесь же. Идеально для гармоничного роста.4. Жизнь в Зелени и Воздухе:* Свежий воздух вместо городского смога основа здоровья вашей семьи.* Приватный Зеленый Двор. Ваше личное пространство для игр и отдыха.5. Простор и Комфорт для Всех:* Высокие потолки 2,75 м! Светло, воздушно, нет давящего ощущения.* Отделка от Застройщика в подарок. Начните обустраивать семейное гнездышко сразу, без лишних трат и пыли.* Пакет ''Климат-Комфорт''. Здоровый микроклимат для малышей и аллергиков.* Элегантная Парадная. Прививайте вкус с порога.Это не квартира. Это инвестиция в счастливое и спокойное будущее ваших детей (и ваше будущее).Финансовая Забота о Семье:* Лучшие цены на квартиры сейчас.* Ипотека от 3,8% выгодные условия для семейного бюджета.* Зачет вторичного жилья легкий переход к новой жизни.* Оплата Материнским Капиталом используйте государственную поддержку.* Все виды сертификатов (военные, др.).* Рассрочка от Застройщика гибкость платежей.ВВОД В ЭКСПЛУАТАЦИЮ - I КВАРТАЛ 2026 ГОДА. Начните строить счастливое будущее уже сейчас.
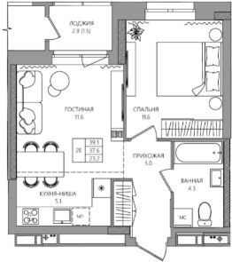
42 м2
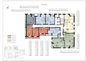
16 / 16 этаж
Кирпич - монолит
- Показать контакты
- Добавить в избранное
42 м2
16 / 16 этаж
Кирпич - монолит
5 983 383
142 123 /м2
Новостройка,
III-2026
III-2026
