2-к, Яблокова Н.М., 2 Показать на карте
Кондратово, Медовый
ЖК Медовый - современный жилой комплекс в экологически чистом районе Новое Кондратово, всего в нескольких шагах от мкр. Парковый. Наслаждайтесь живописными видами на реку Мулянку и Черняевский лес прямо из своего окна!Преимущества комплекса:Готовые и строящиеся дома: 28 домов уже сданы, еще 6 находятся в активной стадии строительства. Экологично, надёжно, проверено временем.Класс энергоэффективности наших домов стартует от категории ''В''.Развитая инфраструктура: Удобные магазины, аптеки, стоматология, фитнес-клуб, салоны красоты, частные детские сады и остановки общественного транспорта всё в шаговой доступности. - Новый детский сад ''Акварельки'' на 288 мест- Открываем новый детский сад в 4 квартале 2025 года на 44 ребенка - Запущена новая школа ''Сфера'' с уклоном на IT сферу на 1100 учеников- Новая поликлиника запуститься в 2025 году с полным циклом оказания помощи Комфортные дворы: Просторные и уютные дворы с игровой и спортивной площадками для детей всех возрастов и зонами для отдыха взрослых. Выделенный паркинг для автомобиля рядом с домом. Безопасность: Подъезды с IP-видеодомофонами, прозрачные входные группы и комната безопасности на каждом этаже с кнопкой экстренного вызова.Качество: Светлые квартиры с увеличенными оконными проемами и специально разработанными эргономичными планировками для комфортной расстановки мебели.Квартира с полной отделкой от застройщика: металлическая входная дверь, натяжные потолки, качественный линолеум, светлые обои, полный набор сантехники и приборов учета, керамическая плитка на полу в санузлах с обустройством системы ''теплый пол''.Несомненно, Вам будет удобно в квартире от СПК! Записывайтесь на экскурсию и убедитесь в этом лично!УНИКАЛЬНЫЕ СПОСОБЫ ПРИОБРЕТЕНИЯ - КУПИТЬ ЛЕГКО!Выгодная ипотека от крупнейших банков РФ.Зачёт вторичным жильём (старая квартира в счет новой!)Квартира подходит под покупку в ипотеку, с помощью материнского капитала, для всех видов жилищных сертификатов.Поможем с одобрением ипотеки на выгодных условиях от ведущих банков города Перми.Количество квартир ограничено!
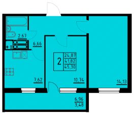
49 м2
3 / 15 этаж
Панель
- Показать контакты
- Добавить в избранное
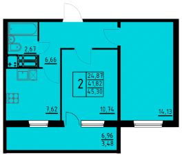
49 м2
3 / 15 этаж
Панель
6 784 415
136 425 /м2
Новостройка,
III-2026
III-2026
