2-к, Гусарова, 5а Показать на карте
Свердловский район, Крохалева
Пермь, Свои люди
Наполнение домаНа первом этаже расположены колясочные и комната для консьержа.Предусмотрено четыре высокоскоростных и безопасных лифта с современным дизайном и качественной отделкой.Дизайнерские холлы выполняются по авторскому проекту.Уютные и эргономичные квартиры правильной формы для счастливых семей. Широкий выбор конфигураций и размеров позволяет подобрать идеальный вариант под свой бюджет.Наши СМАРТ-планировки тщательно проработаны проектировщиками для того, чтобы ваша жизнь в наших квартирах заиграла новыми красками. Классические и европланировки с кухней-гостиной под разный стиль жизни.Ухоженный и благоустроенный дворУникальное решение дворовая территория на уровне второго этажа. Возможность проводить время с родными и близкими в спокойной и уютной атмосфере. Эта часть станет одним из любимых мест для посещения.Двор без машин дворовая территория создана таким образом, чтобы обезопасить взрослых и детей от автомобильного транспорта.Разнообразие игровых зон и тематических площадок для детей разного возраста: качели, карусели и интерактивные зоны.Зона воркаута будет оснащена различными тренажёрами и спортивными комплексами. Также на территории расположены футбольная и баскетбольная площадка. Дети и взрослые могут проводить совместные занятия спортом и устраивать соревнования.Безбарьерная средаДля нас важно, чтобы все жители комплекса чувствовали себя максимально безопасно и комфортно. На территории участка предусмотрены пешеходные пути с возможностью движения маломобильных групп населения: перепады высот между входной площадкой и наружной площадкой придомовой территории не превышает 50мм.
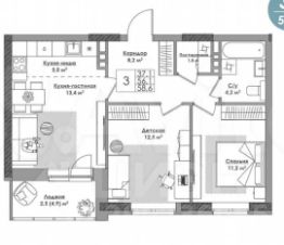
44 м2
22 / 24 этаж
Кирпич - монолит
- Показать контакты
- Добавить в избранное
44 м2
22 / 24 этаж
Кирпич - монолит
6 006 000
134 724 /м2
Новостройка,
IV-2025
IV-2025
