4-к, Водопроводная, 4 лит. а Показать на карте
Кондратово, Жилой комплекс LOQO
LOQO там, где хорошо! Окончание строительных работ дома LOQO - III кв. 2025 г.Жилой комплекс LOQO — современный дом комфорт-класса в Кондратово. Идеальная комбинация близости к природе и привилегий урбанистической среды:Стильные архитектурные решенияЭргономичные планировкиКачественная отделка класса ''комфорт''В шаговой доступности от дома:Супермаркеты, аптеки, пункты выдачи интернет-заказов, салоны красотыШколы, садики, поликлиникиОстановка общественного транспортаБлагоустройство придомовой территории. LOQO экологичный центр для жизни и отдыха. На придомовой территории дома реализована концепция двор-сада без машин и посторонних. Внимание детей привлекут качели-тарзанки с резиновым покрытием, а также горка на холме с геопластикой, которая делает катание детей с горки максимально безопасным, поскольку резиновая крошка смягчает любые падения. Пока дети катаются с горки-трубы, родители могут удобно расположиться на шезлонгах, размещенных под навесом. Видеокамеры с возможностью подключиться к ним дистанционно, огороженная территория и умный шлагбаум обеспечат безопасный отдых вам и вашим близким.Лобби и места общего пользования. Элегантный холл, выполненный по эксклюзивному дизайнерскому проекту. Панорамное остекление входной группы обеспечивает большое количество естественного света.На первом этаже просторная колясочная и санузел с лапомойкой.В 4-й секции дома расположено 40 кладовых, где удобно хранить крупногабаритные вещи и сезонные предметы: лыжи, снегокаты, велосипеды, коляски.Паркинг и кладовые. Просторная наземная парковка на 173 машиноместа. 40 кладовых для хранения крупногабаритных вещей, спортивного инвентаря и автомобильных шин.Коммерческие помещения. В доме ''LOQO'' спроектирован магазин, досуговый центр и 9 офисных помещений. Покупка и сдача в аренду коммерческих помещений на первом этаже это выгодная инвестиция.Условия покупки квартир100% оплатаипотека от ведущих банковматеринский капиталрассрочка от застройщикабесплатный трейд-инДом сдан.
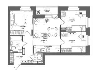
64 м2
8 / 16 этаж
Кирпич - монолит
- Показать контакты
- Добавить в избранное
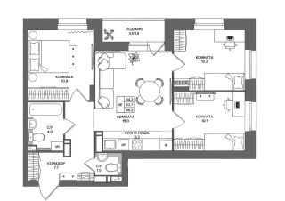
64 м2
8 / 16 этаж
Кирпич - монолит
11 334 000
176 542 /м2
Новостройка,
IV-2025
IV-2025
