Коттедж, Усть-Качка Показать на карте
Усть-Качка
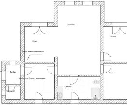
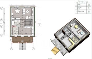
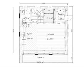
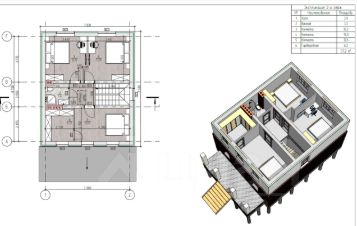
Арт. 119671828 Современный коттедж у реки — природа, комфорт и вдохновение в каждом дне. Этот коттедж создан для тех, кто хочет жить или отдыхать рядом с водой, но без лишнего шума и соседей за забором. Для семей, мечтающих о своём пространстве на природе, для предпринимателей, ценящих комфорт и статус, и для тех, кто выбирает тишину вместо городского ритма. Вы хотите место, где можно отключиться от дел, дышать сосновым воздухом и наслаждаться покоем. Где утром можно выйти с чашкой кофе на террасу, а вечером — смотреть на закат в окне спальни. Чтобы детям было где бегать, а вам — где по-настоящему отдыхать.Что вы получаете: Новый коттедж 2025 года постройки площадью 141 кв.м. расположен на участке 12 соток в Усть-Качке — живописном месте, всего в часе езды от центра Перми. На первом этаже — просторная кухня-гостиная с выходом на террасу, ванная, прихожая и котельная. На втором — три уютные спальни, ванная комната и балкон с видом на сосны и воду. Дом построен из газоблока с утеплением, на монолитной утеплённой плите, крыша — железобетонная, плоская, утеплённая. Коммуникации готовы: электричество, скважина, биосептик, газ проходит по границе участка. Внутри — черновая отделка, чтобы вы создали интерьер по своему вкусу. Дом стоит на второй линии от воды — тишина, спокойствие и при этом всего 100 метров до берега залива реки Качка. Можно купаться, рыбачить, кататься на лодке или просто гулять по берегу.Почему это выгодно именно вам: Это отличная альтернатива загородной жизни без компромиссов. Новый, качественный дом в окружении сосен, рядом с водой, с полным набором коммуникаций и современной архитектурой — готов к тому, чтобы стать вашим. Здесь вы можете отдыхать летом, жить круглый год или создать уютную семейную резиденцию.Сделайте шаг к новой жизни - позвоните прямо сейчас и запишитесь на просмотр. Этот дом нужно не просто увидеть — его нужно почувствовать.Помогу выгодно обменять на вашу квартиру в Перми, одобрить семейную ипотеку и использовать материнский капитал. Звоните или пишите мне, чтобы договориться о показе — возможно, это именно ваш дом.
141 м2
2 этажа
- Показать контакты
- Добавить в избранное
141 м2
2 этажа
15 900 000
112 766 /м2
