Дом, Больничная, 16 Показать на карте
Лысьва
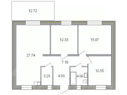
Продается уютный дом площадью 45,2 кв. м, расположенный на земельном участке площадью 513 кв. м, в районе новой школы. Это отличное предложение для семей с детьми, а также для тех, кто ищет комфорт и спокойствие за пределами городской суеты.- Площадь дома: 45,2 кв. м — достаточно пространства для комфортного проживания небольшой семьи или для использования в качестве дачи.- Земельный участок: 513 кв. м — просторный участок, который позволяет реализовать множество идей по благоустройству: можно создать уютный сад, огород или зону для отдыха.1. Дом расположен в районе новой школы, что делает его идеальным для семей с детьми. Близость к учебному заведению обеспечит вам удобство в плане ежедневных поездок.2. Развитая инфраструктура: В шаговой доступности находятся магазины, аптеки, кафе и другие объекты социальной инфраструктуры, что делает повседневную жизнь комфортной.3. Удобный участок: Большой земельный участок позволяет создать свою зону отдыха: разбить сад, организовать пространство для барбекю или площадку для игр с детьми.4. Спокойствие и уединение: Начните свой день с утреннего кофе на свежем воздухе и наслаждайтесь тишиной и умиротворением вашего нового дома.- Возможность достройки или расширения дома при необходимости.- Удобный подъезд, место для парковки и связи с городской инфраструктурой.Как видите, этот дом представляет собой отличный вариант для тех, кто ищет уютное место для жизни или отдыха вблизи образовательных учреждений. Не упустите возможность стать владельцем этого замечательного дома и земельного участка!
45 м2
1 этаж
- Показать контакты
- Добавить в избранное
45 м2
1 этаж
3 000 000
66 372 /м2
