Дом, д. Березники, 4 Показать на карте
Березники
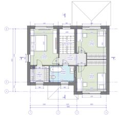
Предлагается к продаже уютный дом площадью 75 кв. метров, расположенный в живописном селе Култаево на улице Молодёжной.Ключевые характеристики:- Фундамент: свайно-ростверковый, плита по грунту.- Стены: автоклавный газоблок марки D500, толщиной 400 мм.- Кровля: двухскатная, металлочерепица.- Окна: установлены металлопластиковые окна.- Двери: входная дверь с терморазрывом.- Коммуникации: предусмотрены выводы для всех необходимых коммуникаций.Внутренние работы:- Перегородки из газоблока (100 мм).- Организация вентиляции в санузле и кухне.- Подшивка карнизов и установка водосточной системы.- Внутренняя разводка электроснабжения с установкой подрозетников и оконечных приборов.- Разводка водоснабжения с обустройством скважины и установкой водонагревателя на 80 литров.- Внутренняя разводка канализации для кухни, санузла и котельной, установка выгребной ямы (из 3 колец по 1,5 м).- Отопление: система ''теплый пол'', электрокотел мощностью 9 кВт.- Оштукатуривание стен и шпатлевка перегородок.- Сухая стяжка пола.Отделка:- Натяжные потолки с точечными светильниками в гардеробной, тамбуре, санузле, котельной и прихожей. Выводы под люстры в комнатах.- Напольное покрытие: керамогранит в санузле, котельной и тамбуре, в остальных помещениях — ламинат.- Межкомнатные двери с ручками и магнитными защелками.Цена: 5 950 000 рублей, включая земельный участок площадью 7,6 соток (ИЖС).Дополнительно: По желанию покупателя возможна декоративная штукатурка фасада.Этот дом — отличное предложение для тех, кто ценит комфорт, качество и уют! Код пользователя: 126465Номер в базе: 6492638
75 м2
1 этаж
- Показать контакты
- Добавить в избранное
75 м2
1 этаж
5 950 000
79 333 /м2
