Если цена в объявлении изменится, мы сразу сообщим вам об этом на электронную почту.
Нажимая «Подписаться», вы соглашаетесь с правилами.
продам дом, Полевой переулок, 37 800 000 ₽
12 янв
Дата публикации объявления
Обн. 20 апр
Дата обновления объявления
5
Количество просмотров (+ просмотры за сегодня)
72 491 ₽/м²
Чистая продажа
Термин "Чистая продажа" означает, что в квартире никто не прописан или
есть куда выписаться и вывезти вещи. Это лучший вариант для покупателя.
Вероятность срыва сделки минимальна.
Этажей2
Площадь участка12 соток
Общая площадь107,6 м2
ЭлектричествоЕсть
Газоснабжениецентральное
Дом можно приобрести по программе Семейная ипотека, с ПВ 20.1 %, под 6% на весь срок. Возможен обмен на вашу недвижимость, Продажа Домов напрямую от застройщика, Можем построить дом на вашем или нашем участке.
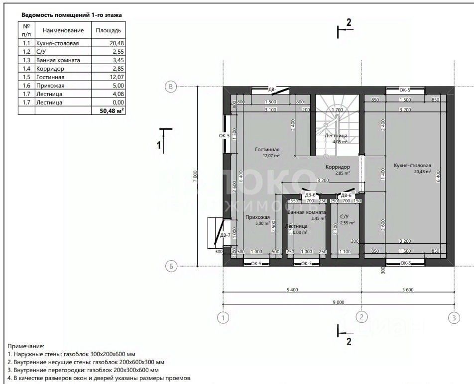
Продается двухэтажный дом, по адресу, г. Усолье, Полевой переулок, д. 3.
Выполним монтаж межкомнатных перегородок на втором этаже в соответствии с планом, предоставленным Покупателем !!!
Параметры дома и участка: - дом из газоблока, толщина стены 300, утеплитель 100 мм, штукатурка Короед - площадь дома 107.6 кв.
Дом можно приобрести по программе Семейная ипотека, с ПВ 20.1 %, под 6% на весь срок. Возможен обмен на вашу недвижимость, Продажа Домов напрямую от застройщика, Можем построить дом на вашем или нашем участке.
Продается двухэтажный дом, по адресу, г. Усолье, Полевой переулок, д. 3.
Выполним монтаж межкомнатных перегородок на втором этаже в соответствии с планом, предоставленным Покупателем !!!
Параметры дома и участка: - дом из газоблока, толщина стены 300, утеплитель 100 мм, штукатурка Короед - площадь дома 107.6 кв.м - площадь участка 12 соток - фундамент, монолитная плита 300 мм - кровля металлочерепица - стены отштукатурены, зашпаклеваны - по всему дому выполнена электропроводка - сделана вентиляция - окна ПВХ, 5-камерные с ламинацией
Коммуникации: - отопление: электрокотёл, 1-этаж теплый пол, 2-этаж радиаторы - вода: скважина рядом с домом, весной будем заводить - вода: на расстоянии 350 м от границы земельного участка имеется точка подключения к централизованной системе водоснабжения - канализация: ж/б кольца, 3 шт диаметром 2м, 6 куб - электричество: бесперебойное , 380 В, 15 кВт
- Инфраструктура : - в шаговой доступности новая школа - магазины - д/сад - остановка общественного транспорта - больница - район очень быстро развивается - детские площадки - сквер - бульвар - рядом сквер, лес, река и лыжная база - лес
Звоните, ответим на интересующие вопросы Покажем в любое удобное для вас время.
Агентство недвижимости Яблоко - работаем на рынке с 2015 года. - работаем со всеми видами сертификатов - покупка, продажа, обмен жилой, коммерческой и загородной недвижимости - помощь в оформлении ипотеке - оценка рыночной стоимости недвижимости - юридическое сопровождение сделок id:5677.