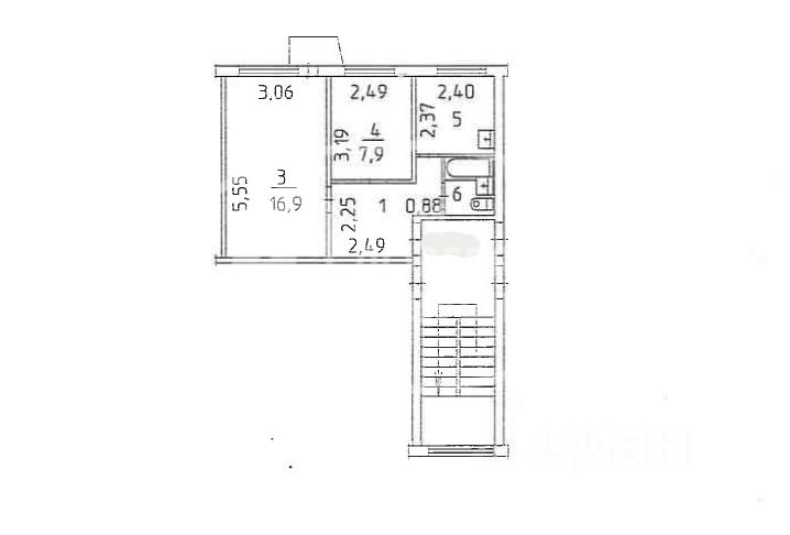
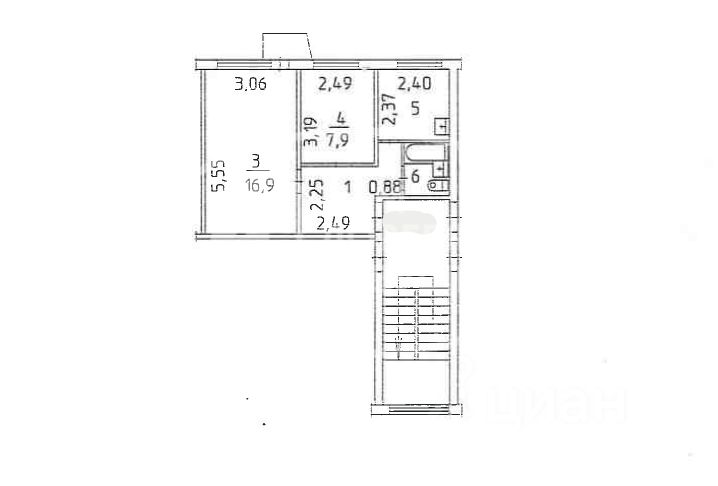
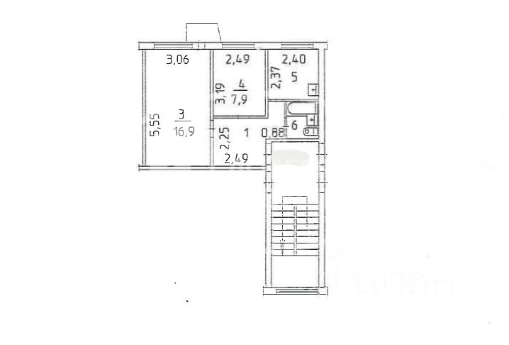
Продается двухкомнатная квартира на четвертом этаже пятиэтажного дома. Комнаты изолированы, окна ПВХ, застекленный балкон, сделан косметический ремонт, на полу линолеум, просторный коридор.
Санузел совмещенный, частично выложен кафельной плиткой. Рядом с домом детский сад, школа, торговые центры, продуктовые и бытовые магазины, остановки общественного транспорта. Квартира полностью готова к проживанию. Один взрослый собственник.

















