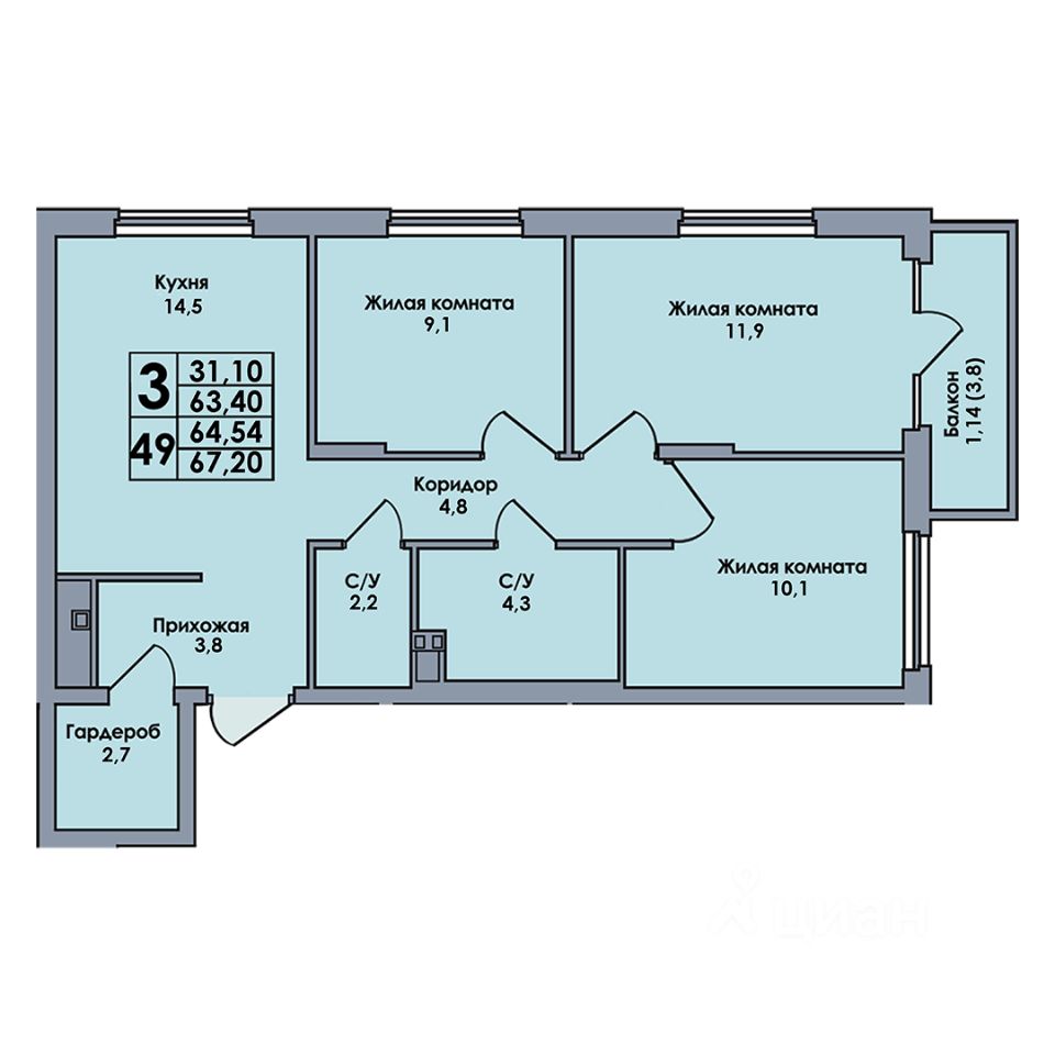
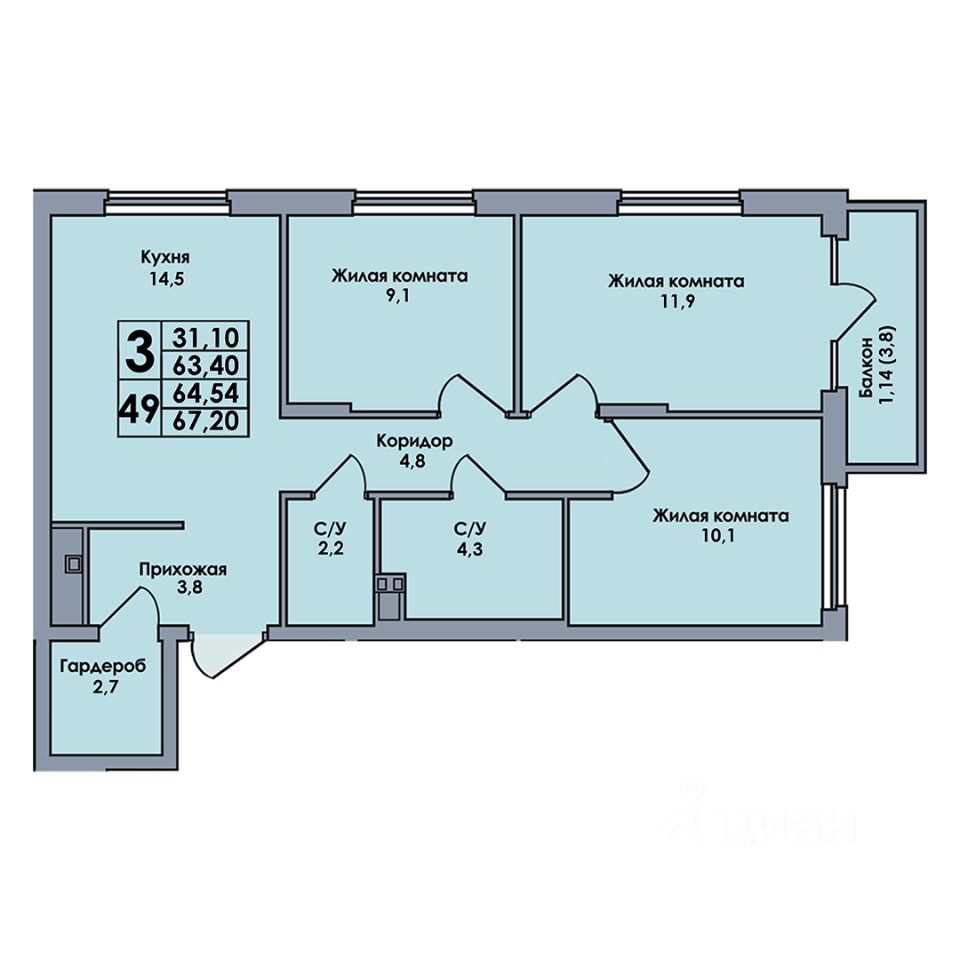
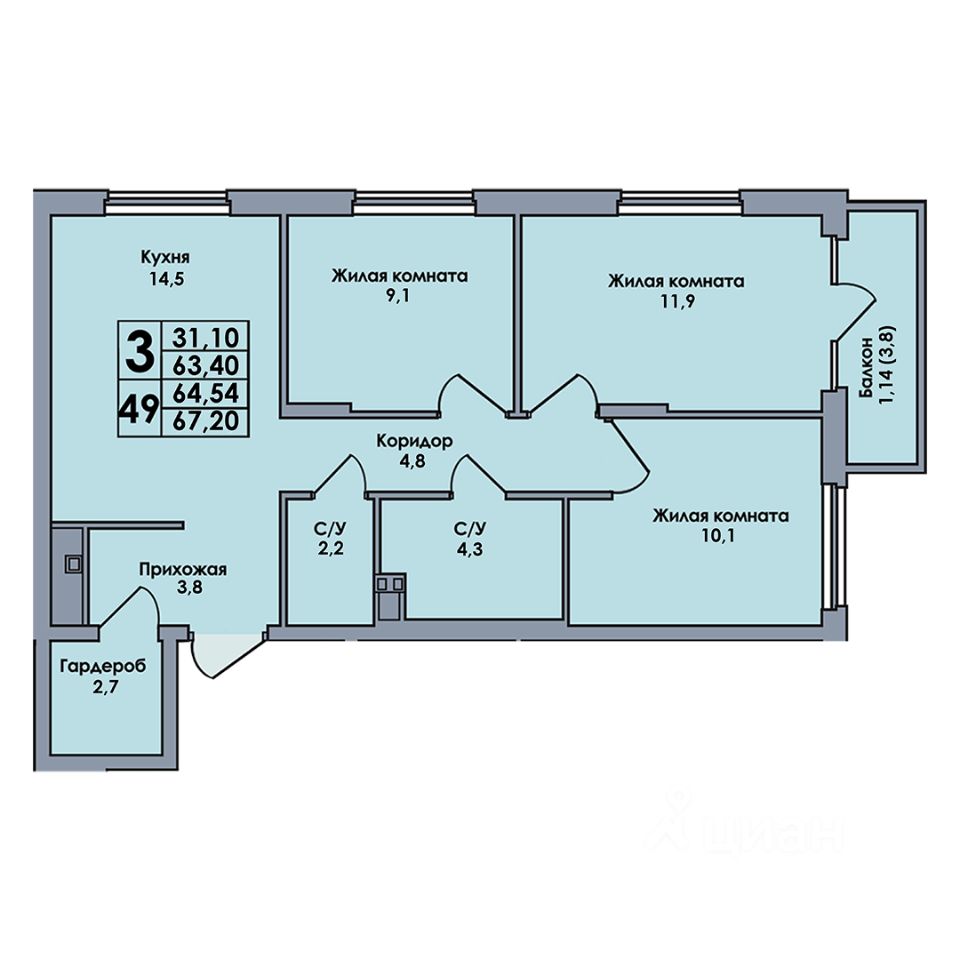
Застройщик - Специализированный застройщик «Строим Вместе Пермь», ООО. Проектная декларация опубликована на сайте наш.дом.рф
Жилой комплекс ''Лотос'' - это новый восьмиэтажный дом комфорт-класса в самом центре Лобаново. Обустроенная территория с современной детской площадкой и видеонаблюдением, развитая инфраструктура гарантируют Вам безопасное проживание.