Если цена в объявлении изменится, мы сразу сообщим вам об этом на электронную почту.
Нажимая «Подписаться», вы соглашаетесь с правилами.
продам коттедж, Барбарисовая, 1415 000 000 ₽
2 июля
Дата публикации объявления
Обн. вчера
Дата обновления объявления
100 000 ₽/м²
Чистая продажа
Термин "Чистая продажа" означает, что в квартире никто не прописан или
есть куда выписаться и вывезти вещи. Это лучший вариант для покупателя.
Вероятность срыва сделки минимальна.
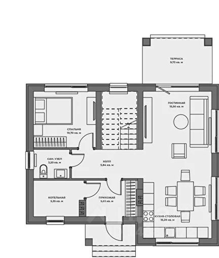
Этажей2
Площадь участка8,01 соток
Общая площадь150 м2
ЭлектричествоЕсть
Газоснабжениецентральное
Вот то, что Вы искали! Отличный проект дома, в котором продуман каждый квадратный метр. Дом имеет класс энергоэффективности ''А''. Характеристики дома: Фундамент: свайно-ростверковый, выполнено утепление отмостки и цоколя Стены: * газобетонные блоки плотностью D500 и шириной 300 мм * каменная вата толщиной 100 мм * фасадная декоративная штукатурка * декоративные фиброцементные панели Кровля: металлочерепица Каскад RAL 7024, утеплитель 250 мм Окна: 5 камерные стеклопакеты, профили Profecta Площадь дома 150 кв.
Вот то, что Вы искали! Отличный проект дома, в котором продуман каждый квадратный метр. Дом имеет класс энергоэффективности ''А''. Характеристики дома: Фундамент: свайно-ростверковый, выполнено утепление отмостки и цоколя Стены: * газобетонные блоки плотностью D500 и шириной 300 мм * каменная вата толщиной 100 мм * фасадная декоративная штукатурка * декоративные фиброцементные панели Кровля: металлочерепица Каскад RAL 7024, утеплитель 250 мм Окна: 5 камерные стеклопакеты, профили Profecta Площадь дома 150 кв.м, 2 этажа, гостиная + кухня+ кабинет+санузел на 1 этаже, 1 мастер-спальня+ 2 детские комнаты+1 ванная комната на 2-ом этаже, полностью оборудованная котельная, собственная скважина и локальное очистное сооружение, газ, электричество.
Дом продаётся с отделкой White Box (предчистовая отделка) с выполненной разводкой всех коммуникаций. Первым покупателям дизайн-проект с расчетами необходимых для отделки материалов в подарок! Территория коттеджного посёлка ''Барбарис'' огорожена, находится под охраной и видеонаблюдением. На территории посёлка установлены спортивная и детская площадки, в шаговой доступности магазин продовольственных и промышленных товаров. Удобный подъезд к посёлку на личном автомобиле, либо на общественном транспорте (остановка автобуса рейс 101).
Социально важные объекты (детский сад, средняя школа, больница) находятся в с.Фролы (9 минут на автотранспорте)
Продажи домов осуществляются в соответствии с 214-ФЗ и использованием безопасных эскроу-счетов ПАО ''Сбербанк.
Возможно купить дом с использованием семейной ипотеки или IT-ипотеки.
Записывайтесь на экскурсию - посмотрите посёлок своими глазами!
___________________________________________ Агентство недвижимости ''Твой дом'' - только реальные объекты в рекламе!