Если цена в объявлении изменится, мы сразу сообщим вам об этом на электронную почту.
Нажимая «Подписаться», вы соглашаетесь с правилами.
продам 3-к, Нейвинская 3-я, 5/1 стр.10 911 000 ₽
28 мая
Дата публикации объявления
Обн. сегодня
Дата обновления объявления
2
Количество просмотров (+ просмотры за сегодня)
Топ
Турбо x2
162 125 ₽/м²
Чистая продажа
Термин "Чистая продажа" означает, что в квартире никто не прописан или
есть куда выписаться и вывезти вещи. Это лучший вариант для покупателя.
Вероятность срыва сделки минимальна.
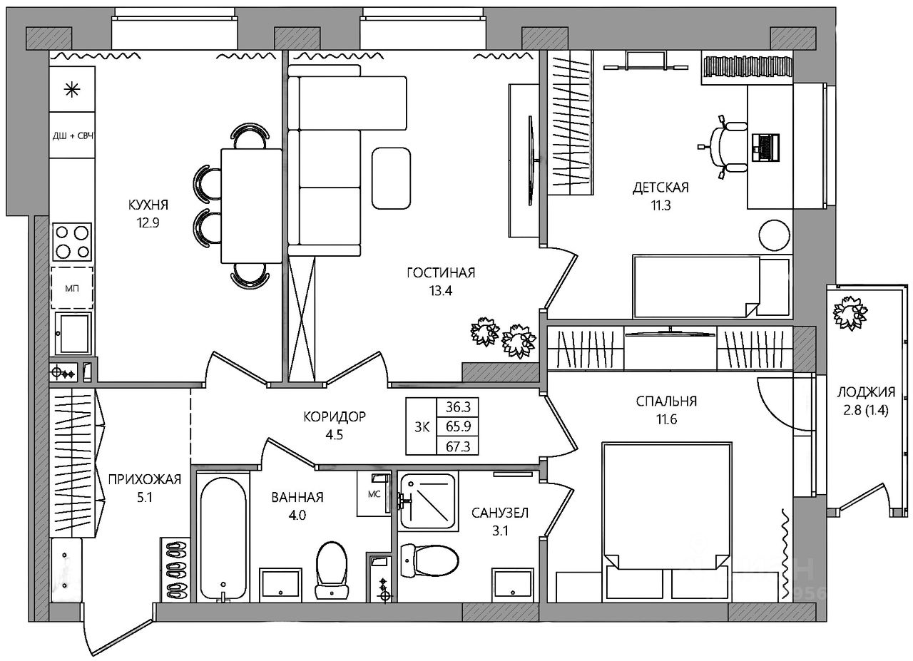
Квартира
Общая площадь67,3 м2
Жилая площадь36,3 м2
Кухня12,9 м2
Количество лоджий1
Тип собственностисвидетельство о праве собственности
Застройщик - Специализированный застройщик «Стром», ООО. Проектная декларация опубликована на сайте наш.дом.рф
В мире, где каждый день ставит перед вами новые задачи, ''НЕО'' открывает новые горизонты. Этот дом создан для тех, кто готов смело шагнуть за границы возможного, увидеть современную жизнь с другого ракурса и одновременно создать крепкий фундамент для своего будущего и семьи. ''НЕО'' — это матрица возможностей, где вы становитесь архитектором своей реальности.
Здесь правила переписаны, а границы реальности расширены для новых возможностей, роста и взаимопонимания. Алгоритм современной жизни:
1. Подземный паркинг
В ''НЕО'' паркинг выходит за пределы привычного. Ваш автомобиль всегда под защитой, а усилители сотовой связи гарантируют устойчивый сигнал на всех уровнях, чтобы вы могли беспрепятственно общаться с близкими. 2.
В мире, где каждый день ставит перед вами новые задачи, ''НЕО'' открывает новые горизонты. Этот дом создан для тех, кто готов смело шагнуть за границы возможного, увидеть современную жизнь с другого ракурса и одновременно создать крепкий фундамент для своего будущего и семьи. ''НЕО'' — это матрица возможностей, где вы становитесь архитектором своей реальности.
Здесь правила переписаны, а границы реальности расширены для новых возможностей, роста и взаимопонимания. Алгоритм современной жизни:
1. Подземный паркинг
В ''НЕО'' паркинг выходит за пределы привычного. Ваш автомобиль всегда под защитой, а усилители сотовой связи гарантируют устойчивый сигнал на всех уровнях, чтобы вы могли беспрепятственно общаться с близкими. 2. Кладовые
Каждая вещь на своём месте — это философия функциональности. В ''НЕО'' предусмотрены кладовые, которые освобождают ваш дом от лишних вещей и создают порядок. Всё необходимое всегда под рукой, а вы сохраняете чувство контроля, организуя семейную жизнь в гармонии. 3. Коммерция на 1 этаже
Коммерческие площади на первом этаже — это часть реальности, которая упрощает ваш день. Здесь находятся магазины, сервисы и места для встреч, обеспечивающие всё необходимое для повседневных задач. Этот алгоритм создаёт удобство, о котором вы даже не задумываетесь. 4. Благоустройство
Двор ''НЕО'' — это место, где семейные ценности становятся центральной осью жизни. Здесь дети могут активно играть, развивая воображение и творческие способности, а для взрослых предусмотрены зоны для расслабленного отдыха и общения. Озеленение создаёт естественный барьер от шума города, превращая двор в тихий семейный оазис, где вы можете проводить время вместе, не отвлекаясь на внешние факторы. 5. Безопасность
Безопасность в ''НЕО'' — не просто опция, а основа жизни для вас и вашей семьи. Система видеонаблюдения работает круглосуточно, обеспечивая защиту двора, подъездов и паркинга. Это невидимый щит, который оберегает всё, что для вас ценно, позволяя вам сосредоточиться на своих близких. НЕО — ваш код современной жизни:
ул. 3-я Невинская, 5
8 жилых этажей
Квартиры от 26,4 до 68,5 кв.м
80 квартир
Высота потолков 2,72 м
Окончание строительства дома — третий квартал 2027 года.