Если цена в объявлении изменится, мы сразу сообщим вам об этом на электронную почту.
Нажимая «Подписаться», вы соглашаетесь с правилами.
продам дом, Солнечная, 75 500 000 ₽
11 апр
Дата публикации объявления
Обн. 21 ноя
Дата обновления объявления
4
Количество просмотров (+ просмотры за сегодня)
53 450 ₽/м²
Чистая продажа
Термин "Чистая продажа" означает, что в квартире никто не прописан или
есть куда выписаться и вывезти вещи. Это лучший вариант для покупателя.
Вероятность срыва сделки минимальна.
Этажей2
Площадь участка8,2 соток
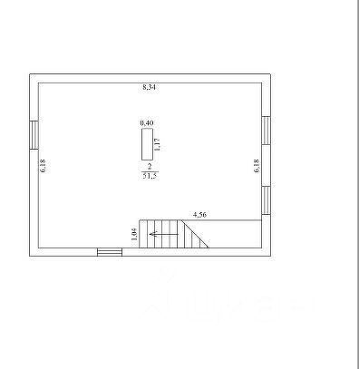
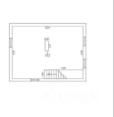
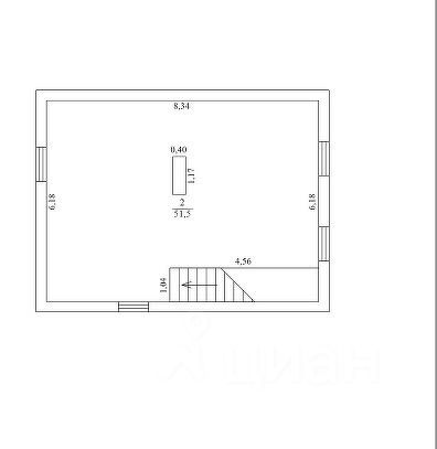
Общая площадь102,9 м2
ЭлектричествоЕсть
Газоснабжениенет
Дом 2016 года постройки,2 этажа, из газоблока теплит 300,фасад штукатурка, крыша черепица, утеплитель Эковер, система водостока, фундамент ленточно-свайный, плита монолитная,электроэнергия 380,разводка по дому,заземление,вода:скважина 27м, заведена в дом, канализация: выгребная яма на 3 кольца,отопление:электрическое, теплый контур(4 контура), в зале каминопечь ии выведен дымоход под печь (кухня). на 1 этаже расположены:зал 25 кв.м, кухня 10,7 кв.м,с/у совмещенный 3,95 кв.м,коридор 7кв.м, техническое помещение 2,3 кв.м, и второе помещение под твердотопливный котел,входная группа, качественная дверь,второй этаж планировка на ваше усмотренье,терраса (выход из зала),отмостка, забетонированная площадка на входе, забор частично.
Дом 2016 года постройки,2 этажа, из газоблока теплит 300,фасад штукатурка, крыша черепица, утеплитель Эковер, система водостока, фундамент ленточно-свайный, плита монолитная,электроэнергия 380,разводка по дому,заземление,вода:скважина 27м, заведена в дом, канализация: выгребная яма на 3 кольца,отопление:электрическое, теплый контур(4 контура), в зале каминопечь ии выведен дымоход под печь (кухня). на 1 этаже расположены:зал 25 кв.м, кухня 10,7 кв.м,с/у совмещенный 3,95 кв.м,коридор 7кв.м, техническое помещение 2,3 кв.м, и второе помещение под твердотопливный котел,входная группа, качественная дверь,второй этаж планировка на ваше усмотренье,терраса (выход из зала),отмостка, забетонированная площадка на входе, забор частично. До Култаево 2 км, в теплое время года есть прямая дорога, 15минут пешим ходом. от деревней Шумки 400 м, до ближайшего водоема 1 км,