Если цена в объявлении изменится, мы сразу сообщим вам об этом на электронную почту.
Нажимая «Подписаться», вы соглашаетесь с правилами.
продам дом, Коралловая, 156 530 000 ₽
11 апр
Дата публикации объявления
Обн. 21 ноя
Дата обновления объявления
65 300 ₽/м²
Чистая продажа
Термин "Чистая продажа" означает, что в квартире никто не прописан или
есть куда выписаться и вывезти вещи. Это лучший вариант для покупателя.
Вероятность срыва сделки минимальна.
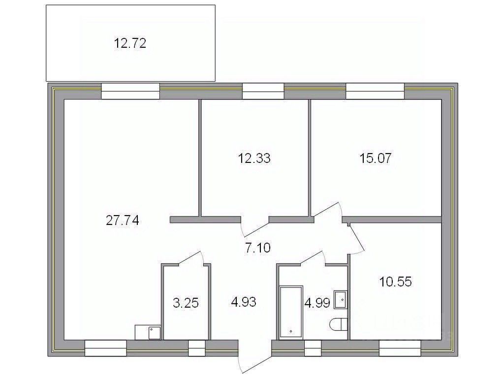
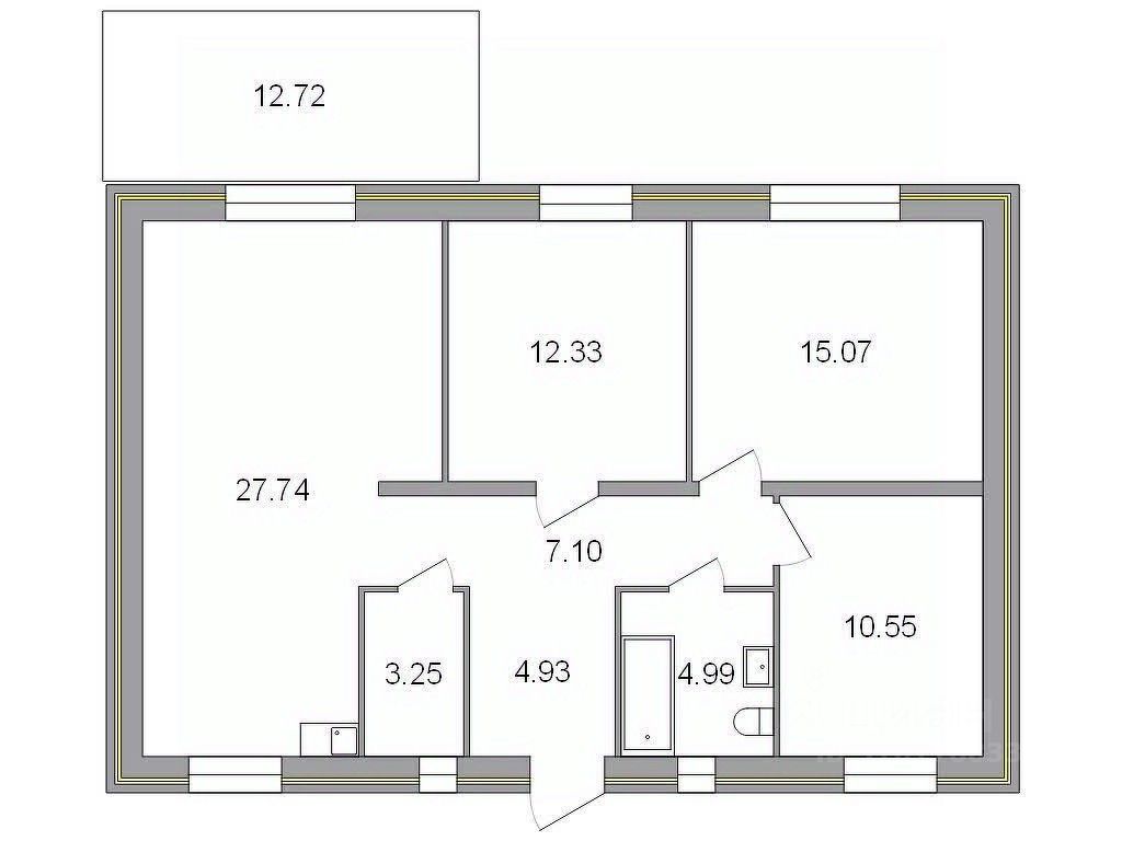
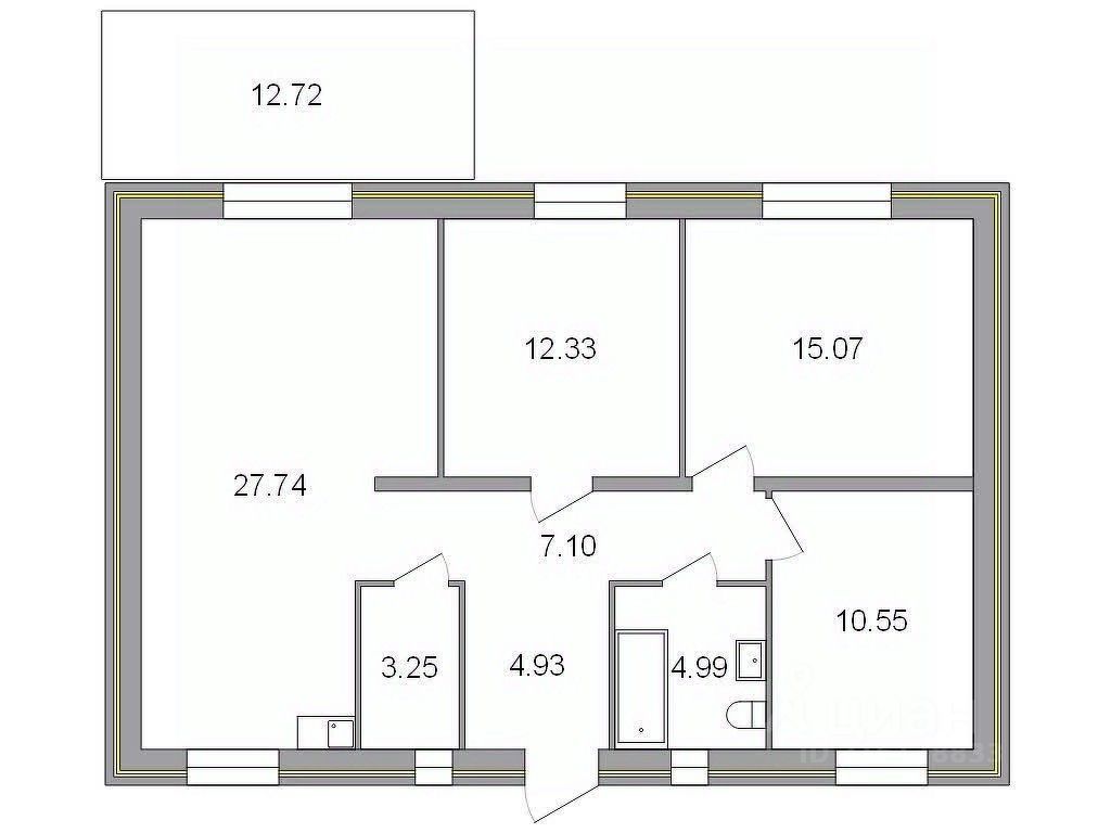
Этажей1
Площадь участка8,59 соток
Общая площадь100 м2
ЭлектричествоЕсть
Газоснабжениенет
В продаже дом в КРП Култаево
- Площадь: 100 кв. м — оптимальный размер для комфортного проживания небольшой семьи.
- Фундамент: Ленточный с монолитной плитой, который утеплен пеноплексом толщиной 50 мм, обеспечивает надежную поддержку и защиту от холода.
- Отмостка: Шириной 900 мм с утеплителем Пеноплекс также толщиной 50 мм, что помогает предотвратить промерзание грунта и улучшает теплозащитные характеристики.
- Цоколь: Отделан фасадными панелями, что не только эстетично, но и защищает основание дома от внешних негативных факторов.
- Стены: Основная кладка выполнена из газоблока толщиной 300 мм, что обеспечивает хорошую прочность и теплоизоляцию.
В продаже дом в КРП Култаево
- Площадь: 100 кв. м — оптимальный размер для комфортного проживания небольшой семьи.
- Фундамент: Ленточный с монолитной плитой, который утеплен пеноплексом толщиной 50 мм, обеспечивает надежную поддержку и защиту от холода.
- Отмостка: Шириной 900 мм с утеплителем Пеноплекс также толщиной 50 мм, что помогает предотвратить промерзание грунта и улучшает теплозащитные характеристики.
- Цоколь: Отделан фасадными панелями, что не только эстетично, но и защищает основание дома от внешних негативных факторов.
- Стены: Основная кладка выполнена из газоблока толщиной 300 мм, что обеспечивает хорошую прочность и теплоизоляцию. Утепление наружных стен каменной ватой ''Эковер'' толщиной 50 мм и плотностью не менее 45 кг/м улучшает энергоэффективность здания.
- Отделка стен: Сайдинг придает дому современный вид и обеспечивает дополнительную защиту от атмосферных воздействий.
- Кровля: Металлочерепица ''Каскад'' с утеплением (каменная вата Эковер 35 кг/м, 200 мм) обеспечивает надежную защиту от снега и дождя, а также сохраняет тепло в помещении.
- Отсутствие водосточной системы может быть недостатком, если в регионе наблюдаются сильные осадки.
- Подшивка свесов и фронтонов: Коричневый софит завершает внешний вид дома и защищает от вредителей и атмосферных условий.
- Канализация: Система из 2 колец и 2 колец с переливом по 1,5 м с крышками и люками обеспечивает эффективное отведение сточных вод.
- Водоснабжение: Скважина глубиной до 40 м и вибрационный насос — надежное решение для обеспечения дома водой.
- Вентиляция: Без точных характеристик сложно судить, но важна для поддержания качественного микроклимата внутри дома.
- Теплые полы: Система с заливкой незамерзающей жидкости создает комфортное тепло в помещении, особенно в холодное время года.
В целом, ваш дом обладает хорошими характеристиками, которые способствуют комфортному проживанию и энергоэффективности. Не забывайте о регулярных проверках состояния систем и утепления для обеспечения долговечности и эффективности всех комплектующих в будущем.