Если цена в объявлении изменится, мы сразу сообщим вам об этом на электронную почту.
Нажимая «Подписаться», вы соглашаетесь с правилами.
продам коттедж, Королево урочище8 950 000 ₽
7 фев 2025
Дата публикации объявления
Обн. 7 фев 2025
Дата обновления объявления
4
Количество просмотров (+ просмотры за сегодня)
74 583 ₽/м²
Чистая продажа
Термин "Чистая продажа" означает, что в квартире никто не прописан или
есть куда выписаться и вывезти вещи. Это лучший вариант для покупателя.
Вероятность срыва сделки минимальна.
Этажей2
Площадь участка14 соток
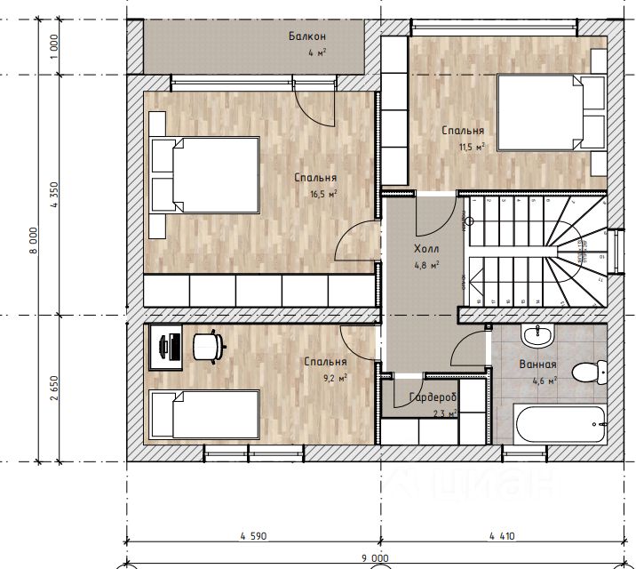
Общая площадь120 м2
ЭлектричествоЕсть
Газоснабжениенет
Расположение: урочище Королево, Добрянский район, рядом с поселком Пальники.
Назначение земель:
Сх2 (сельскохозяйственное использование).
Разрешенное использование: садоводство, строительство жилых домов до 3 этажей, хозяйственные постройки, гаражи и нежилые садовые дома. Адрес присвоен. Регистрация ПМЖ
Конструктив:
Фундамент: железобетонная плита 300 мм с двухуровневым армированием.
Стены: полистирол-бетон 300 мм с декоративной штукатуркой.
Крыша: двускатная с утеплением 200 мм, металлочерепица.
Остекление: 5 камерные ПВХ рамы с двухкамерными стеклопакетами.
Предчистовая отделка включает:
Межкомнатные перегородки из ПГБлоков.
Теплые полы.
Расположение: урочище Королево, Добрянский район, рядом с поселком Пальники.
Назначение земель:
Сх2 (сельскохозяйственное использование).
Разрешенное использование: садоводство, строительство жилых домов до 3 этажей, хозяйственные постройки, гаражи и нежилые садовые дома. Адрес присвоен. Регистрация ПМЖ
Конструктив:
Фундамент: железобетонная плита 300 мм с двухуровневым армированием.
Стены: полистирол-бетон 300 мм с декоративной штукатуркой.
Крыша: двускатная с утеплением 200 мм, металлочерепица.
Остекление: 5 камерные ПВХ рамы с двухкамерными стеклопакетами.
Предчистовая отделка включает:
Межкомнатные перегородки из ПГБлоков.
Теплые полы.
Отштукатуренные стены.
Внутренние коммуникации (в том числе черновая разводка водоснабжения и канализации, электропроводка).
Уникальность местоположения:
До центра города Перми - 30-40 минут. От трассы Березники-Пермь 1,9 км. Река Чусовая: 1100 м. Река Кама: 1500 м.
Вы забудете, что такое суета кипящего города, шумные улицы и проблемы с парковкой.
Дом находится в живописном месте на слиянии рек Кама и Чусовая, рядом могущественным природным памятником - мысом Стрелка.
Подходит под льготную ипотеку (аккредитованы в Сбербанке, ВТБ, Банке ДОМ РФ). ВОЗМОЖЕН ОБМЕН НА КВАРТИРУ, АВТОМОБИЛЬ
В эту цену входит сам дом, земля, электроснабжение, централизованная вода, канализация. Современные дома с панорамными окнами и теплыми полами.