Застройщик - Специализированный застройщик «Беляева 17», ООО. Проектная декларация опубликована на сайте наш.дом.рф
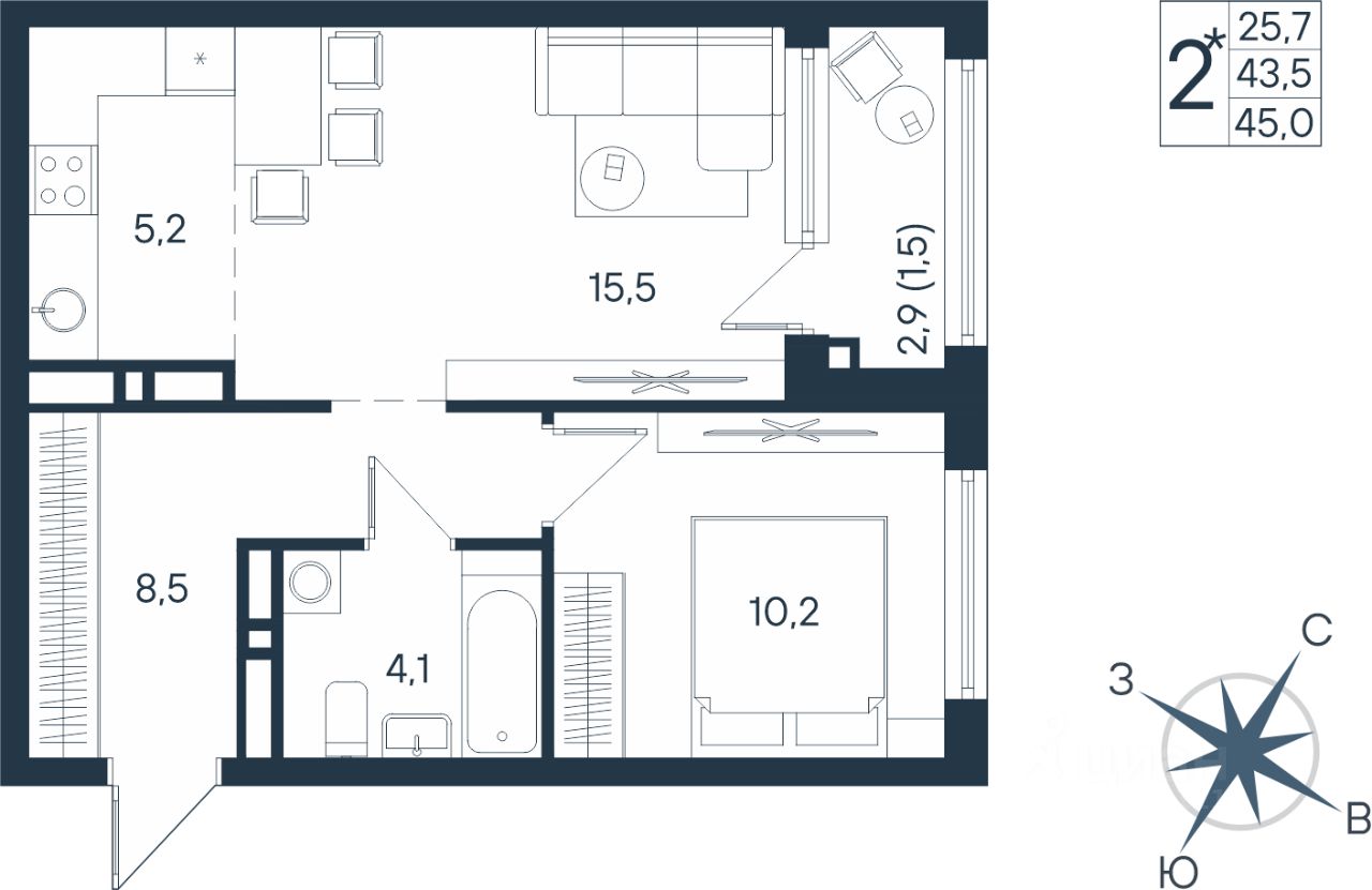
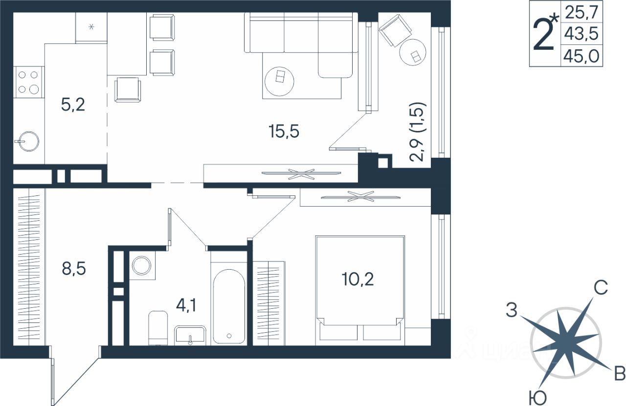
Продаётся студия в строящемся доме (Дом 17), срок сдачи: IV-кв. 2026, общей площадью 45 кв.м., на 9 этаже. Новый жилой комплекс ''ЮГ на Беляева'' от Специализированного застройщика ''Беляева 17'' расположен по адресу: г. Пермь, улица Космонавта Беляева.